
The Prairie Trail District in Ankeny, Iowa is the location for an upcoming architecture project aimed at creating a sustainable building that harmonizes with its surroundings. The project’s primary goal is to address the pressing issue of environmental sustainability by integrating systems within the building and utilizing renewable resources to reduce its carbon footprint. To achieve this goal, the project has incorporated several sustainable design features, such as energy-efficient lighting, heating, and cooling systems, renewable energy sources such as solar panels, and water-saving technologies. The building will also use locally sourced materials, reduce waste during construction, and prioritize the use of recycled materials in its design. The project is crucial for promoting sustainable practices in the Prairie Trail District and beyond. It sets an example for other development projects in the region, encouraging the adoption of eco-friendly designs and reducing the environmental impact of human activity. The project also provides an opportunity for local businesses to adopt green technologies and practices, promoting sustainable economic growth in the region. Overall, the Park View Plaza project aims to create a harmonious and sustainable environment by reducing the impact of human activity on the natural world. Through its innovative design and use of renewable resources, the project serves as a model for sustainable development, promoting a more responsible and ecologically conscious approach to architecture and construction.
Core Concepts:

Sustainable Systems:
Passive & Active design alongside renewable energy systems are two important elements of sustainable design that can significantly offset a building’s environmental impact. Passive strategies involve designing a building to make the best use of natural resources and climatic conditions to reduce energy consumption. Active design strategies are design interventions that promote physical activity and reduce sedentary behaviors in the built environment to improve health and well-being. Renewable energy involves using sources of energy that are replenished naturally. Together, these elements can achieve greater energy efficiency and sustainability in a building.

Biophilic Design:
Biophilic design is a sustainable design concept that involves integrating natural elements into the built environment to promote human well-being and sustainability. It includes incorporating elements such as natural light, plants, water, and natural materials to improve the user’s connection with nature. Biophilic design can provide benefits such as improved mental health, productivity, and indoor air quality. In sustainable design, biophilic design is essential because it can improve energy efficiency and encourage eco-friendly behaviors, such as using public transportation and reducing waste.

Materiality:
Sustainable materiality is a crucial aspect of sustainable design that involves selecting environmentally responsible materials for use in buildings or products. It considers the entire life-cycle of materials, from extraction to disposal, to minimize their environmental impact. Sustainable materials include those with low embodied energy, low carbon footprint, and potential for reuse or recycling. Sustainable materiality also involves the use of locally sourced materials and the re-purposing of existing materials. By considering the environmental impact of materials, designers can create buildings and products that promote a healthier and more sustainable lifestyle.
Precedence Studies:

111 East Grand
111 E Grand Ave, Des Moines, IA 50309
Neumann Monson Architects
Mixed-Use Architecture
65,000 sq. ft.

Sendero Verde
60 East 112th St, New York, NY 10029
Handel Architects
Residential Architecture
395,000 sq. ft.

Dillion 617
617 N Dillon St, Los Angeles, CA 90026
Lorcan O’Herlihy Architects
Residential & Commerical
72,000 sq. ft.
Sustainable Systems Research:
Site Analysis:
The Park Sight district in the Prairie Trail development in Ankeny, Iowa, is a vibrant and growing community that combines the beauty of natural surroundings with modern amenities. The area is characterized by its stunning parkland, which includes a large lake surrounded by Chautaqua park and a network of trails for walking, jogging, and biking. Residents and visitors alike can enjoy the beautiful green spaces, which are perfect for picnicking, playing with children, or simply taking a leisurely stroll. The lake provides opportunities for fishing, kayaking, and other water-based activities, while the trails offer scenic views of the surrounding prairie. In addition to its natural beauty, the Parkside district also features a variety of modern amenities, including a community center, a swimming pool, a fitness center. These facilities provide opportunities for residents to stay active and engaged within their community. The Parkside district is also home to a variety of shops, restaurants, and entertainment venues, making it a lively and convenient place to live. With its combination of natural beauty and urban conveniences, the Park Sight district is a great place for anyone looking for a vibrant and active community in the heart of Iowa.

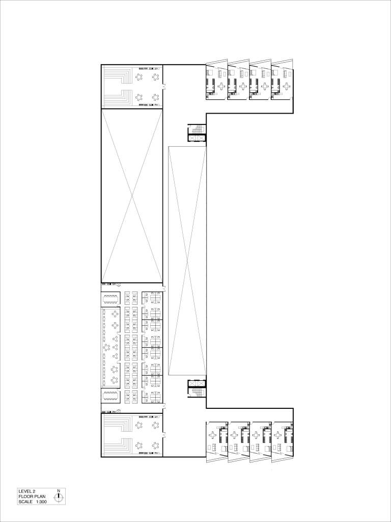
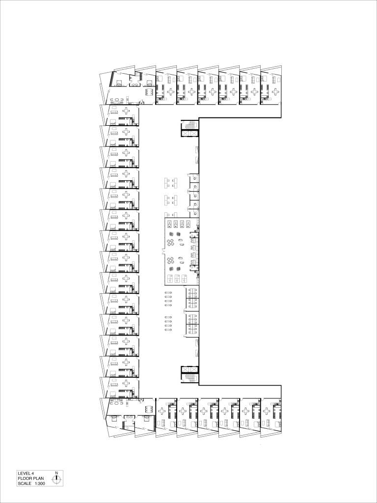
Massing & Programming:

PUBLIC:
– Co-working space
– Stairitorium & Atrium
– Fitness Center
– Restaurant & Café
– Open Balcony
– Courtyard
PRIVATE:
– Living Quarters
– Study & Meeting Rooms
– Lounge & Game Rooms
– Open Terrace
Site Plan:

Floor Plans:
Elevation & Section:


Diagrams:


Renders:
















































Leave a comment